- Living area
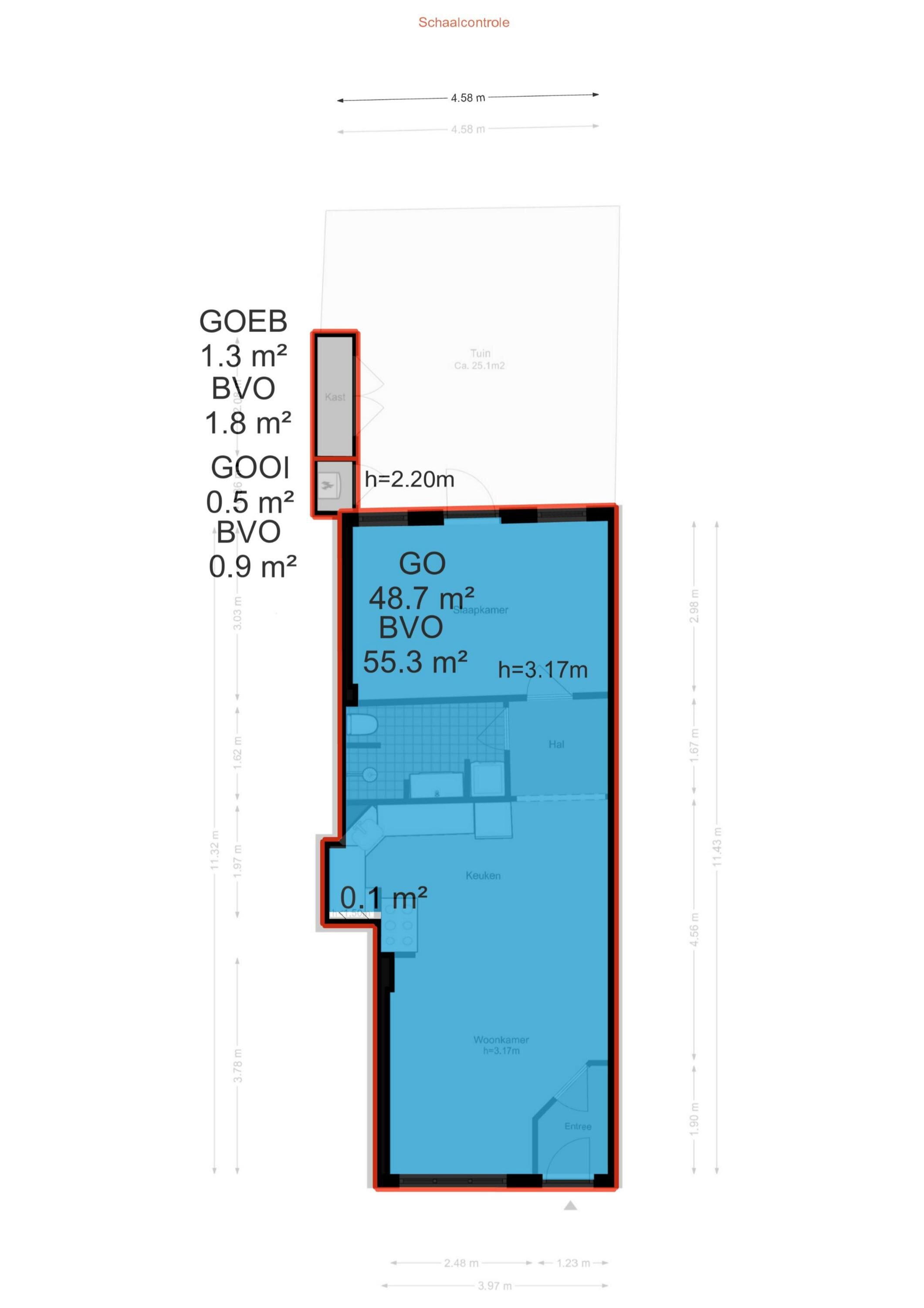
- About 49 m²
- Contents
- About 217 m³
- Construction year
- Built in 1893
- Number of rooms
- 2 rooms (1 bedrooms)
In the bustling heart of De Pijp, within throwing distance of Sarphatipark and the Albert Cuyp Market, lies this atmospheric and well-divided ground-floor apartment of approximately 49 m². The apartment is situated on its own plot and forms part of a characteristic building from 1893, which was split into condominium rights in 2002. Unique to this apartment is the sunny garden on the south side of about 25 m² and the impressive ceiling height of over 3 meters, which creates a spacious feeling and gives character to the home.
*English translation below*
Classification
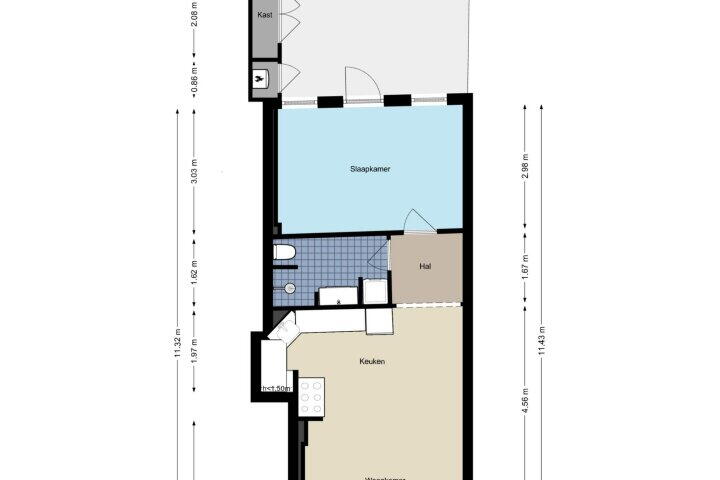
Through the private entrance on the street side, you enter the apartment. You come into the hall which offers space for a wardrobe. From here, you enter the spacious and light living room with an open kitchen. The presence of high windows at the front ensures that the living room enjoys a sea of daylight. The open kitchen is equipped with various built-in appliances and provides ample cupboard space.
The bathroom is centrally located in the apartment, equipped with a floating toilet, walk-in shower, sink, and connection for a washing machine.
On the quiet rear side lies the spacious bedroom with sliding doors to the sunny, private backyard garden. This city garden is beautifully laid out and offers a lot of privacy: an ideal place to relax, have lunch or read a book in the sun. The garden contains several practical garden sheds, one of which houses the central heating installation.
Environment
The Gerard Doustraat is one of the most beloved streets in the popular city district De Pijp. Located near the Quellijnstraat and just a few steps from the Albert Cuyp Market, you live here in the beating heart of Amsterdam-Zuid. The neighborhood is characterized by a mix of historical architecture, cozy cafes and restaurants, trendy boutiques, sports facilities, and daily shops. Everything is within walking or cycling distance.
The nearby Sarphatipark offers space for relaxation and recreation. Also within a few minutes' reach are the Museum Square, UvA (University of Amsterdam), Vondelpark, and Zuidas. With various tram connections and the North/South line (metro station De Pijp) around the corner, the rest of the city is easily accessible. Even by car, you are quickly on the ring A10.
In short, a unique opportunity for those who want to live in a charming apartment with a garden in a fantastic location!
Parkeren kan hier middels een bewonersvergunning. Voor meer informatie over kosten en mogelijke wachttijden adviseren wij u de website van de Gemeente Amsterdam te raadplegen (www.amsterdam.nl).
VvE
- De maandelijkse VvE-bijdrage bedraagt € 250,-- p/mnd
- Administration is self-managed
- Bestaat uit 5 leden
- MJOP present
Details
• Woonoppervlakte ca. 49 m²
• Bouwjaar ca.1893
• Insulated via double glazing
• Heating and hot water through a central heating boiler
Located on own land
• Self-occupation clause does not apply
• Delivery by mutual agreement
Meeting instruction
The sold area is measured using the Measurement Instruction, based on standards as defined in NEN 2580. The Measurement Instruction aims to apply a more uniform method of measurement for indicating the usable surface area. However, differences in measurement outcomes are not entirely excluded due to, for example, interpretation differences, rounding and limitations when performing a measurement. The property has been measured by a reliable professional company and the buyer releases the employees of Voorma & Millenaar real estate agents et al. and the seller from any discrepancies in the provided measurements. The buyer declares that they have had the opportunity to measure the sold area themselves according to NEN 2580.
-------------------------------------------------------------------------------------------------------------------
**PARTICIPANT OPEN HOUSE DAY MARCH 28TH 11AM - 3PM**
In the heart of De Pijp, just steps from Sarphatipark and the Albert Cuyp market, this charming and well-designed ground floor apartment of approximately 49 m² with garden is located. The apartment sits on private land and forms part of a characteristic building dating back to 1893, which was divided into condominiums in 2002. What sets this apartment apart is its sunny south-facing garden of around 25 m² and the impressive ceiling height exceeding 3 meters, creating an open feel and adding character to the home.
Layout
You enter the apartment through its own entrance on the street side. You enter the hall, which offers space for a wardrobe. From here, you enter the spacious and bright living room with open kitchen. The high windows at the front ensure that the living room enjoys plenty of natural light. The open kitchen is equipped with various built-in appliances and offers ample cupboard space.
Centrally located in the home is the bathroom, equipped with a wall-mounted toilet, walk-in shower, basin, and connection for a washing machine.
At the quiet rear is the spacious bedroom with French doors to the sunny, enclosed backyard. This city garden is beautifully landscaped and offers plenty of privacy: an ideal place to relax, have lunch, or read a book in the sun. The garden has several practical garden sheds, one of which houses the central heating system.
surroundings
Gerard Doustraat is one of the most beloved streets in the popular De Pijp district. Located near Quellijnstraat and a few steps from the Albert Cuyp market, you will be living in the beating heart of Amsterdam-Zuid. The neighborhood is characterized by a mix of historic architecture, cozy restaurants, trendy boutiques, sports facilities, and everyday shops. Everything is within walking or cycling distance.
The nearby Sarphatipark offers space for relaxation and recreation. The Museumplein, the University of Amsterdam, Vondelpark, and the Zuidas are also just a few minutes away. With various tram connections and the North/South line (De Pijp metro station) around the corner, the rest of the city is easily accessible. You can also reach the A10 ring road quickly by car.
A unique opportunity for those who want to live in a charming apartment with a garden in a fantastic location!
Parking is available here with a resident's permit. For more information about costs and possible waiting times, we advise you to consult the website of the Municipality of Amsterdam (www.amsterdam.nl).
Homeowners' association
- The monthly HOA contribution is €250
- Administration is managed in-house
- Consists of 5 members
- MJOP (long-term maintenance plan) available
Details
Living area approx. 49 sqm
Year of construction approx. 1893
Insulated with double glazing
Heating and hot water via central heating installation
Located on private land
Non-owner-occupancy clause applies
Delivery in consultation
Measurement instruction
The sold property has been measured according to the Measurement Instruction, based on the standards set out in NEN 2580. The Measurement Instruction aims to apply a more unambiguous method of measurement to provide an indication of the usable area. However, the Measurement Instruction does not entirely eliminate differences in measurement results due to, for example, differences in interpretation, rounding off, and limitations when performing measurements. The property has been measured by a reliable professional company, and the buyer indemnifies the employees of Voorma & Millenaar real estate agents o.g. and the seller against any deviations from the specified measurements. The buyer declares that they have had the opportunity to measure the property themselves or to have it measured according to NEN 2580.
Transfer
- Asking price
- € 475,000 k.k.
- Status
- Under bid
- Acceptance
- In consultation
- Contribution VvE
- € 250 per month
Construction
- Object type
- Basement apartment
- Type of construction
- Existing construction
- Construction year
- 1893
- Type roof
- Gable roof
Area and content
- Living area
- 49 m²
- Contents
- 217 m³
- Other indoor space
- 1 m²
- External storage space
- 1 m²
Classification
- Number of rooms
- 2 rooms (1 bedrooms)
- Number of bathrooms
- 1 bathroom
- Bathroom facilities
- Toilet, shower, washing machine connection
- Number of floors
- 1 dwelling level
- Provisions
- TV cable
Energy
- Energy label
- C
- Energy label registration
- 09-10-2023
- Isolation
- Double glass
- Heating
- CV boiler
- Hot water
- CV boiler
- Boiler
- Combination boiler gas heated (owned)
Outdoor space
- Location
- In the center, in a residential area
- Garden
- Back garden
- Dimensions backyard
- 25 sqm (5 meters deep and 5 meters wide)
- location of garden
- Located in the south
Garage
- Type garage
- No garage
Parking facility
- Type of parking facility
- Paid parking, parking permits
VvE check list
- Company Registration at KvK
- Yes
- Annual meeting
- Yes
- Periodic contribution
- Yes, €250 per month
- Reserve fund present
- Yes
- Maintenance plan
- Yes
- Saddle insurance
- Yes
Energy consumption in Amsterdam
Energy label this property
Energielabel C
Energy label publication: 09-10-2023
Annual electricity consumption
(Average apartment in Amsterdam)
Annual gas consumption
(Average apartment in Amsterdam)
* Figures are derived from CBS and are intended as an indication and may differ for this property
Mortgage costs indicator
Own contribution:
Savings / excess value
Interest:
Lowest 10-year interest rate
Lowest 10-year interest rate
2,78% - Centraal Beheer - NHG
3,04% - Centraal Beheer - 80%
Lowest 20-year interest rate
3,29% - Centraal Beheer - NHG
3,52% - Centraal Beheer - 80%
Lowest 30-year interest rate
3,41% - Centraal Beheer - NHG
3,7% - Argenta - 80%
Mortgage:
Gross monthly expenses: € 0 p/m
Net monthly expenses: € 0 p/m
How do we calculate this?
The interest rate is based on the lowest 10-year fixed rate for a single mortgage part. The stated rate (3.04% zonder NHG) was verified on 25-04-2026. This calculation is based on an annuity mortgage that is fully repaid, with monthly payments remaining the same throughout the entire term. The actual interest rate and net monthly costs may vary depending on your personal situation and the mortgage provider. Consult a financial advisor for an accurate calculation and advice. No rights can be derived from this calculation; it is for indicative purposes only.
Documentation
Cadastral map
Living environment
Visit our website
Viewing
To make an offer
Valuation
Search query
Download everything
Viewing solar limits
On the map
Residents of Amsterdam
Statistics for postal code area 1073
- Total number of inhabitants
- 13365 residents
- Men
- 49%
- Women
- 51%
Residents of Amsterdam
Statistics for postal code area 1073
- until 15 years
- 10%
- 15 to 25 years
- 10%
- 25 to 35 years
- 44%
- 45 to 65 years
- 24%
- 65 and older
- 12%
Households in Amsterdam
Statistics for postal code area 1073
- Single without children
- 62%
- Multiple persons without children
- 22%
- Households without children
- 84%
Households in Amsterdam
Statistics for postal code area 1073
- Households with one child
- 8%
- Households with multiple children
- 9%
- Households with children
- 17%
Homes in Amsterdam
Statistics for postal code area 1073
- Housing for 1945
- 88%
- Houses between 1945 and 1965
- 1%
- Houses between 1965 and 1975
- 1%
- Houses between 1975 and 1985
- 1%
- Houses between 1985 and 1995
- 5%
Homes in Amsterdam
Statistics for postal code area 1073
- Homes between 1995 and 2005
- 2%
- Homes between 2005 and 2015
- 4%
- Homes after 2015
- 1%
- Rented apartments
- 80%
- Purchase properties
- 20%
Other income Amsterdam
Statistics for postal code area 1073
- Average WOZ value
- € 440.000,-
- People under 65 with disability benefits
- 12%
Other income Amsterdam
Statistics for postal code area 1073
- Addresses per square kilometer
- 11185
- "Urbanity (scale 1 to 5)"
- 100%
Voorma & Millenaar makelaars
If you have questions or would like to schedule a viewing, you can use the form on the right. You will then be contacted shortly thereafter.
Amsterdamseweg 176
1182 HL, Amstelveen
020 - 641 8694 amsterdam@voormamillenaar.nl www.voormamillenaar.nlMake contact
Who is Voorma & Millenaar?
Voorma & Millenaar real estate agents, established in 1966, has been a trusted name in the Amstelveen housing market for some time. Our accessible office is located on the Amsterdamseweg in Amstelveen and is supported by an enthusiastic and proactive team that is always ready to assist you.
Our expertise lies in advising and mediating on the Amstelveen housing market, as well as in the surrounding municipalities. At Voorma & Millenaar, delivering excellent service is central, prioritizing the interests of our clients.
Our entire team, based on the Amsterdamseweg, is ready for you! It consists of driven professionals who spare no effort to achieve the best results. Thanks to this dedication, we have distinguished ourselves for years with unmatched results and service.
Latest reviews
-
Thoornpolder 26
Ik heb Celine leren kennen als een servicegerichte en toegankelijke makelaar die goed inzicht heeft van de lokale huizenmarkt.
-
Sint Janskruidlaan 104
Ik ben top geholpen bij de verkoop van mijn appartement!! Echt een Aanrader deze makelaar want ze hebben voor mooie foto’s gezorgd, in video en hielde mij van elke bezichtiging op...
-
Chantal Berken
Wij kijken met een heel goed gevoel terug op de verkoop van onze woning via Voorma & Millenaar Makelaars, en in het bijzonder de begeleiding van Jill Loffeld. Vanaf het eerste mome...